меню
Меню
Элитная загородная недвижимость
Коттеджи и таунхаусы
Участки
Поселки
Аренда
Более 1096 объектов
Элитная городская недвижимость
Квартиры
Апартаменты
Особняки
Аренда
Жилые комплексы
Более 730 объектов
Новостройки Москвы
Новостройки Сочи
Новостройки Минска
Зарубежная недвижимость
девелоперам
о компании
Новости
ипотека
Trade-In
Аналитика и консалтинг
Инвестиции
8 (495) 431-55-31
Элитная городская недвижимость
Всего
предложений:
70
8 (495) 431-55-31
Мой выбор
Элитная городская недвижимость
→
Элитные квартиры
→
Тверской
Элитные квартиры
Апартаменты
Элитные жилые комплексы
Аренда
Особняки
Поиск по улице, названию и ID
ЖК
Выбор ЖК
Ильинка 3/8 (15)
Большая Дмитровка IX (14)
Долгоруковская, 25 (9)
Дом в Газетном (5)
Камергер (4)
Karetniy Plaza (Каретный Плаза) (3)
Резиденция Тверская (3)
Nicole (Николь) (3)
St. Nickolas (2)
Страстной бульвар, 4с4 (1)
Большая Дмитровка улица, 20с2 (1)
Петровский дом (1)
Итальянский квартал (1)
Брюсов 19 (1)
Тверская-Ямская 4-я улица, 24 (1)
Петровка улица, 28 (1)
Vesper Tverskaya (1)
Тверской-Ямской 1-й переулок, 11 (1)
Гостиница Москва (1)
Stoleshnikov 7 (1)
Тверская-Ямская 4-я улица, 22 (1)
Цена (
USD
/
руб.
)
От
До
млн USD
Цена (
USD
/
руб.
)
От
До
млн руб.
Площадь
От
До
м
2
Количество комнат
От
До
Отделка
Не выбрано
С отделкой
Без отделки
Этаж
От
До
Объектов:
70
Найти
Сбросить фильтры
Объектов:
70
Сбросить фильтры
Показать
Смотреть на карте
сортировать список
дороже → дешевле
Продажа элитных квартир
квартира
Тверская-Ямская 4-я улица, 22
м. Маяковская
Тверская-Ямская 4-я улица, 22
160.5 кв.м.
3 комнат
2 ванных комнат
5 этаж
С отделкой
1 773 022 $
138 000 000 ₽
ID объекта: 24784
апартаменты
Karetniy Plaza (Каретный Плаза)
м. Цветной бульвар
Большой Каретный переулок, 24с2
118.8 кв.м.
2 комнат
2 ванных комнат
3 этаж
Без отделки
796 575 $
62 000 000 ₽
ID объекта: 23738
апартаменты
Karetniy Plaza (Каретный Плаза)
м. Цветной бульвар
Большой Каретный переулок, 24с2
117.5 кв.м.
3 комнат
2 ванных комнат
5 этаж
Без отделки
847 967 $
66 000 000 ₽
ID объекта: 23881
квартира
Петровка улица, 28
м. Пушкинская
Петровка улица, 28
120 кв.м.
3 комнат
2 ванных комнат
3 этаж
С отделкой
1 670 238 $
130 000 000 ₽
ID объекта: 23309
апартаменты
Karetniy Plaza (Каретный Плаза)
м. Цветной бульвар
Большой Каретный переулок, 24с2
140 кв.м.
3 комнат
3 ванных комнат
2 этаж
С отделкой
1 870 667 $
145 600 000 ₽
ID объекта: 15083
апартаменты
Резиденция Тверская
м. Маяковская
Брестская 2-я улица, 6
100.4 кв.м.
2 комнат
2 ванных комнат
9 этаж
Без отделки
967 453 $
75 300 000 ₽
ID объекта: 21367
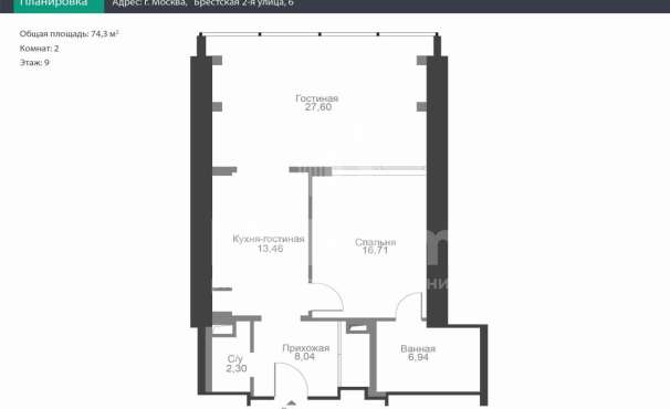
апартаменты
Резиденция Тверская
м. Маяковская
Брестская 2-я улица, 6
74.3 кв.м.
2 комнат
2 ванных комнат
9 этаж
Без отделки
503 641 $
39 200 000 ₽
ID объекта: 21375
апартаменты
Резиденция Тверская
м. Маяковская
Брестская 2-я улица, 6
35.1 кв.м.
1 комнат
1 ванных комнат
9 этаж
Без отделки
263 384 $
20 500 000 ₽
ID объекта: 21379
апартаменты
St. Nickolas
м. Лубянка
Никольская улица, 10/2с2Б
105.8 кв.м.
2 комнат
2 ванных комнат
2 этаж
С отделкой
2 119 918 $
165 000 000 ₽
ID объекта: 22469
квартира
Тверская-Ямская 4-я улица, 24
м. Маяковская
Тверская-Ямская 4-я улица, 24
99 кв.м.
3 комнат
1 ванных комнат
2 этаж
С отделкой
899 359 $
70 000 000 ₽
ID объекта: 22281
квартира
Страстной бульвар, 4с4
м. Чеховская
Страстной бульвар, 4с4
110.2 кв.м.
4 комнат
2 ванных комнат
3 этаж
С отделкой
1 117 775 $
87 000 000 ₽
ID объекта: 15227
квартира
Брюсов 19
м. Охотный ряд
Брюсов переулок, 19
457.5 кв.м.
5 комнат
4 ванных комнат
7 этаж
С отделкой
9 000 000 $
700 498 800 ₽
ID объекта: 20662
апартаменты
St. Nickolas
м. Лубянка
Никольская улица, 10/2с2Б
122 кв.м.
3 комнат
3 ванных комнат
2 этаж
С отделкой
3 500 000 $
272 416 200 ₽
ID объекта: 22186
квартира
Итальянский квартал
м. Новослободская
Фадеева улица, 4А
300 кв.м.
8 комнат
4 ванных комнат
6 этаж
С отделкой
4 047 116 $
315 000 000 ₽
ID объекта: 20294
квартира
Большая Дмитровка улица, 20с2
м. Пушкинская
Большая Дмитровка улица, 20с2
188 кв.м.
5 комнат
3 ванных комнат
3 этаж
Без отделки
1 143 471 $
89 000 000 ₽
ID объекта: 16679
квартира
Петровский дом
м. Трубная
Петровский бульвар, 21
124 кв.м.
3 комнат
2 ванных комнат
3 этаж
С отделкой
2 500 000 €
226 341 500 ₽
ID объекта: 18817
апартаменты
Гостиница Москва
м. Охотный ряд
Охотный ряд улица, 2
90 кв.м.
2 комнат
2 ванных комнат
10 этаж
С отделкой
Цена по запросу
ID объекта: 23641
квартира
Тверской-Ямской 1-й переулок, 11
м. Маяковская
Тверской-Ямской 1-й переулок, 11
180 кв.м.
4 комнат
3 ванных комнат
10 этаж
С отделкой
3 000 000 $
233 499 600 ₽
ID объекта: 23498
апартаменты-пентхаус
Vesper Tverskaya
м. Маяковская
Тверская-Ямская 1-я улица, 2А
1067.4 кв.м.
7 комнат
9 этаж
Без отделки
Цена по запросу
ID объекта: 23449
апартаменты-пентхаус
Дом в Газетном
м. Охотный ряд
Газетный переулок, 13с2
392.1 кв.м.
7 комнат
5 ванных комнат
5 этаж
Без отделки
22 254 910 $
1 732 170 825 ₽
ID объекта: 22247
Показывать по:
20
30
50
100
Сбросить все
1
2
3
4
Бесплатная консультация по недвижимости в районе "Тверской"
8 (499) 755-25-80
, ежедневно с 9:00 до 21:00.
Позвоните мне!