меню
Меню
Элитная загородная недвижимость
Коттеджи и таунхаусы
Участки
Поселки
Аренда
Более 2101 объектов
Элитная городская недвижимость
Квартиры
Апартаменты
Особняки
Аренда
Жилые комплексы
Более 1178 объектов
Новостройки Москвы
Новостройки Сочи
Новостройки Минска
Зарубежная недвижимость
девелоперам
о компании
Новости
ипотека
Trade-In
Аналитика и консалтинг
Инвестиции
8 (495) 431-55-31
Элитная городская недвижимость
Всего
предложений:
1178
8 (495) 431-55-31
Мой выбор
Элитные квартиры
Квартиры от собственников в лучших районах Москвы
Более 702 предложений!
Подробнее
Апартаменты
Лофты, мансарды, многоуровневые квартиры, пентхаусы. Такие форматы недвижимости часто имеют статус апартаментов
Более 470 предложений!
Подробнее
Элитные жилые комплексы
Хороший уровень безопасности, высокие потолки, панорамные окна. Выберите подходящий район
Более 218 предложений!
Подробнее
Особняки
Жить в центре столицы в собственном доме с интересной историей, - что может быть более престижно?
Более 6 предложений!
Подробнее
Аренда
Максимальный комфорт, безопасность, высокий уровень обслуживания. Элитные квартиры разной площади
Более 0 предложений!
Подробнее
сортировать список
дороже → дешевле
Продажа элитных квартир
квартира
Zvonarsky Deluxe (Звонарский де Люкс)
м. Трубная
Звонарский переулок, 3
124 кв.м.
3 комнат
3 ванных комнат
7 этаж
С отделкой
3 736 570 $
287 000 000 ₽
ID объекта: 25146
апартаменты
Ленинский 38
м. Ленинский проспект
Ленинский проспект, 38Ак3
36.2 кв.м.
2 комнат
1 ванных комнат
4 этаж
С отделкой
351 524 $
27 000 000 ₽
ID объекта: 25125
апартаменты
Ленинский 38
м. Ленинский проспект
Ленинский проспект, 38Ак3
130.4 кв.м.
3 комнат
2 ванных комнат
4 этаж
С отделкой
1 432 135 $
110 000 000 ₽
ID объекта: 25124
апартаменты
Подъёмная улица, 14с37
м. Авиамоторная
Подъёмная улица, 14с37
130 кв.м.
2 комнат
1 ванных комнат
2 этаж
С отделкой
403 602 $
31 000 000 ₽
ID объекта: 25102
квартира
Мосфильмовский
м. Раменки
Мосфильмовская улица, 88к4
84.1 кв.м.
3 комнат
2 ванных комнат
11 этаж
Без отделки
649 669 $
49 900 000 ₽
ID объекта: 24973
апартаменты
Ленинский 38
м. Ленинский проспект
Ленинский проспект, 38Ак3
167 кв.м.
4 комнат
3 ванных комнат
4 этаж
С отделкой
1 783 659 $
137 000 000 ₽
ID объекта: 23255
квартира
Capital Towers (Капитал Тауэрс)
м. Деловой центр
Краснопресненская набережная, 14Ак2
131 кв.м.
4 комнат
3 ванных комнат
59 этаж
Без отделки
1 620 265 $
124 450 000 ₽
ID объекта: 24862
апартаменты
Поклонная 9
м. Парк Победы
Поклонная улица, 9
128.2 кв.м.
3 комнат
3 ванных комнат
21 этаж
С отделкой
Цена по запросу
ID объекта: 25145
апартаменты
Город столиц, Москва-Сити
м. Деловой центр
Пресненская набережная, 8с1
103 кв.м.
2 комнат
2 ванных комнат
33 этаж
С отделкой
1 236 844 $
95 000 000 ₽
ID объекта: 25144
квартира
Машкова улица, 6с1
м. Красные ворота
Машкова улица, 6с1
105 кв.м.
3 комнат
2 ванных комнат
5 этаж
С отделкой
1 757 620 $
135 000 000 ₽
ID объекта: 25142
квартира
Сердце Столицы
м. Шелепиха
Шелепихинская набережная, 34к4
103 кв.м.
3 комнат
2 ванных комнат
2 этаж
С отделкой
1 236 844 $
95 000 000 ₽
ID объекта: 25143
квартира
Level Причальный (Левел Причальный)
м. Шелепиха
Причальный проезд, 10к1
82.6 кв.м.
3 комнат
2 ванных комнат
17 этаж
Без отделки
566 344 $
43 500 000 ₽
ID объекта: 24960
апартаменты
Wine House (Вайн Хаус)
м. Павелецкая
Садовническая улица, 57с2
95.7 кв.м.
3 комнат
2 ванных комнат
3 этаж
С отделкой
2 018 008 $
155 000 000 ₽
ID объекта: 24957
квартира
Тессинский, 1
м. Китай-город
Тессинский переулок, 1
125.7 кв.м.
3 комнат
2 ванных комнат
2 этаж
Без отделки
Цена по запросу
ID объекта: 24937
апартаменты
Titul на Серебрянической
м. Китай-город
Серебрянический переулок, 8
87.5 кв.м.
3 комнат
1 ванных комнат
5 этаж
С отделкой
1 536 290 $
118 000 000 ₽
ID объекта: 24917
квартира-пентхаус
Knightsbridge Private Park (Найтсбридж)
м. Спортивная
Ефремова улица, 19к3
399.9 кв.м.
7 комнат
5 ванных комнат
7 этаж
Без отделки
32 548 523 $
2 500 000 000 ₽
ID объекта: 24838
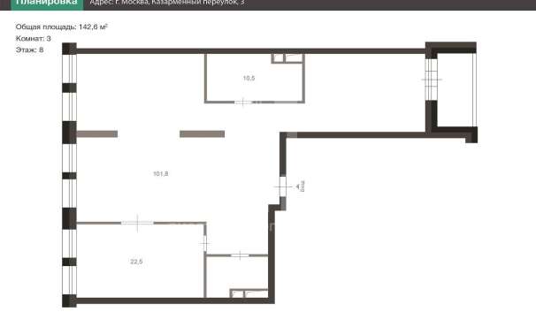
квартира
Дом на Покровском бульваре
м. Чистые пруды
Казарменный переулок, 3
165.8 кв.м.
4 комнат
2 ванных комнат
7 этаж
Без отделки
2 732 384 $
209 870 043 ₽
ID объекта: 19679
квартира
Дом на Покровском бульваре
м. Чистые пруды
Казарменный переулок, 3
140.7 кв.м.
3 комнат
2 ванных комнат
7 этаж
Без отделки
2 173 815 $
166 967 252 ₽
ID объекта: 19680
квартира
Золотые ключи-1
м. Минская
Минская улица, 1Б
197.5 кв.м.
4 комнат
2 ванных комнат
1 этаж
С отделкой
2 304 435 $
177 000 000 ₽
ID объекта: 23248
квартира
Арбат улица, 27/47
м. Арбатская
Арбат улица, 27/47
317 кв.м.
5 комнат
4 ванных комнат
2 этаж
С отделкой
9 113 587 $
700 000 000 ₽
ID объекта: 23146
Показывать по:
20
30
50
100
Сбросить все
1
2
...
58
59