особняк
| Площадь квартиры: | 1040 кв. м |
| Кол-во комнат: | 10 |
| Кол-во спален: | 8 |
| Кол-во cанузлов: | 12 |
| Стоимость за кв.м: | 9 332 $ |
| Этаж: | 1 |
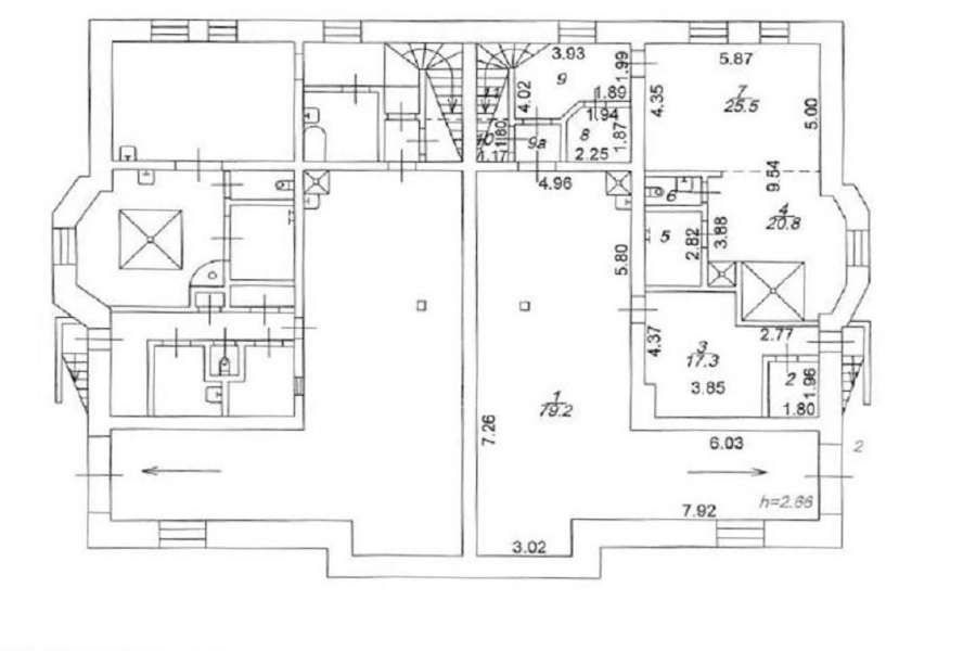
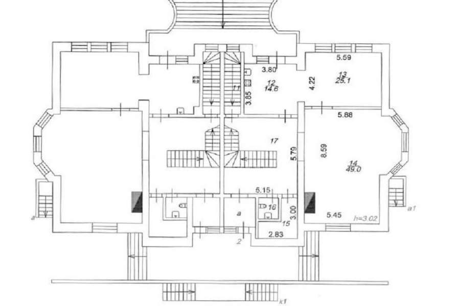
Предлагается особняк на Большой Татарской улице. Дом на участке 14 соток. Огороженная территория, наземная и подземная стоянка. Особняк состоит из двух зеркальных половин. В цоколе подземная парковка, сауны, небольшие спортзалы, санузлы, 1 этаж - кухни, обеденные, гостиные с камином, санузлы, гардеробные; 2 этаж - санузлы, гардеробные, спальни, комнаты и кабинеты хозяина, небольшие балконы; 3 этаж - санузлы, небольшие комнаты. Двор, частично кирпичный забор, благородные ели и каштаны делают территорию еще более обособленной. В данном особняке имеются комнаты для охраны и собственная котельная, остальные коммуникации городские.
Предлагается особняк на Большой Татарской улице. Дом на участке 14 соток. Огороженная территория, наземная и подземная стоянка. Особняк состоит из двух зеркальных половин. В цоколе подземная парковка, сауны, небольшие спортзалы, санузлы, 1 этаж - кухни, обеденные, гостиные с камином, санузлы, гардеробные; 2 этаж - санузлы, гардеробные, спальни, комнаты и кабинеты хозяина, небольшие балконы; 3 этаж - санузлы, небольшие комнаты. Двор, частично кирпичный забор, благородные ели и каштаны делают территорию еще более обособленной. В данном особняке имеются комнаты для охраны и собственная котельная, остальные коммуникации городские.





