апартаменты
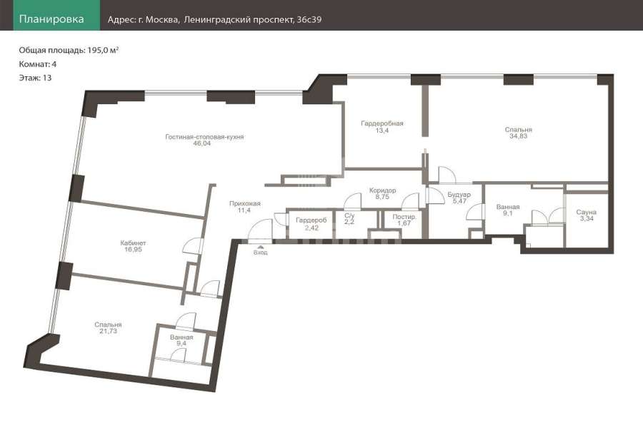
| Площадь квартиры: | 195 кв. м |
| Кол-во комнат: | 4 |
| Кол-во спален: | 2 |
| Кол-во cанузлов: | 3 |
| Стоимость за кв.м: | 12 128 $ |
| Этаж: | 13 |
Предлагаются апартаменты в жилом комплексе ВТБ Арена парк. В отделке использованы качественные натуральные материалы. Апартаменты меблированы, оборудованы бытовой техникой, предметами интерьера и готовы к проживанию. Функциональная планировка включает в себя просторную зону кухни-столовой-гостиной, мастер спальню с ванной и гардеробной комнатами, вторую спальню с ванной комнатой, кабинет, постирочную, гардеробную, гостевой санузел. Из панорамных окон открывается вид на Москву. В наличии 2 машиноместа в подземном паркинге и кладовое помещение. На закрытой территории сделано все для обеспечения приватности проживания, безопасности и комфорта высочайшего уровня. Удобная транспортная доступность и развитая инфраструктура района сделают проживание в квартире еще более комфортным.
Предлагаются апартаменты в жилом комплексе ВТБ Арена парк. В отделке использованы качественные натуральные материалы. Апартаменты меблированы, оборудованы бытовой техникой, предметами интерьера и готовы к проживанию. Функциональная планировка включает в себя просторную зону кухни-столовой-гостиной, мастер спальню с ванной и гардеробной комнатами, вторую спальню с ванной комнатой, кабинет, постирочную, гардеробную, гостевой санузел. Из панорамных окон открывается вид на Москву. В наличии 2 машиноместа в подземном паркинге и кладовое помещение. На закрытой территории сделано все для обеспечения приватности проживания, безопасности и комфорта высочайшего уровня. Удобная транспортная доступность и развитая инфраструктура района сделают проживание в квартире еще более комфортным.


















