Дом ID 9927, Рассвет (Раздоры)
| Площадь дома: | 680 кв. м |
| Площадь участка: | 15 соток |
| Материал дома: | Иной |
| Отделка: | Под ключ с мебелью |
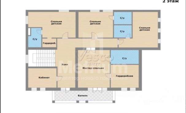
| Этажи/уровни: | Цоколь: бассейн, спортзал, сауна, душевая, с/у, котельная, гараж на 2м/м 1 этаж: холл, гардеробная ,изолированная кухня, столовая, гостиная с камином, кабинет, с/у, зимний сад. 2 этаж: 2 спальни с ванной и гардеробной, 2 гостевые спальни, с/у, зимний сад, библиотека под атриумом, построчная. Мансарда: атриум, гардеробная, 2 спальни, с/у, бильярдная . |
| Коммуникации: | центральные |
Предлагается уютный дом в поселке Раздоры, всего в 5 км от Москвы.
Дом имеет идеально расположенную локацию: до гимназии им. Е.М. Примакова 10 минут; удобный, быстрый доступ на МКАД через Немчиновку, либо по Рублево-Успенскому шоссе; быстрый выезд на платную дорогу; рядом благоустроенная лесопарковая зона для прогулок, катания на велосипеде с пунктом велопроката, а так же есть специально оборудованные островки со скамейками, где можно насладиться лесным пейзажем - парк Малевича, так же в пешей доступности расположился детский парк на 50 га, с уникальным игровым комплексом, не имеющий аналогов в России.
Дом хорошо подходит как для большой семьи с детьми, учитывая планировку дома, близость к школе, детскому саду и большому детскому парку, так и людям 50+, кому важен быстрый доступ в Москву, натуральные материалы в отделке, уютные тенистые места среди сосен на участке, приватную веранду с видом на хвойные деревья, непосредственную близость большой лесопарковой зоны для прогулок.
Метриум Премиум – участник ассоциации агентств элитной недвижимости AREA.















