| Площадь дома: | 1046 кв. м |
| Площадь участка: | 33.5 соток |
| Материал дома: | Иной |
| Отделка: | Под ключ |
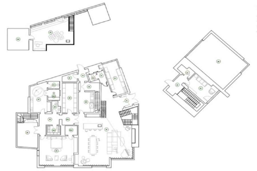
| Этажи/уровни: | - 1 этаж: чемоданная, венткамера, техническое помещение спа - зоны. Дом оборудован датчиками контроля протечки в каждом санузле, насосом откачки воды в случае прорыва, газовыми датчика перекрытия при утечке. 1 этаж: СПА Зона: бассейн 10м с противотоком , сауна из абаши (африканское дерево), хамам, джакузи, с/у, душевая, раздевалка. Малая гостиная, винная комната с круглосуточным охлаждением, сырная комната, домашний кинотеатр (со звукоизоляцией и акустической подготовкой, готовый к установке оборудования), блок из 4 детских спален (с индивидуальными ванными комнатами и гардеробами), производственная кухня с кухонным подъемником, кладовая, постирочная и помещение для хранения уборочного инвентаря, две спальни для персонала с душевыми, вент камера, электрощитовая, серверная, водомерный узел с оборудованием для водоподготовки, котельная, комната для водителя с санузлом. В доме установлены системы диспетчеризации, автоматизации «умный дом» и «мультирум» с возможностью удаленного доступа управления домом. 2 этаж: Главная гостиная 104 м2 с дровяным камином, парадная кухня и доготовочная, гардеробная, хозяйский блок: спальня, ванная комната, несколько гардеробных для одежды, сумок, драгоценностей, спортзал или библиотека, гараж, кабинет или комната водителя, с/у. Антресоль 2 этаж: кабинет или библиотека, секретная комната. |
| Коммуникации: | центральные |
Дом расположен на участке 33,5 сотки, находящемся в собственности, который окружен участком в 9 Га (находится в аренде - сервитут).
Объекты, похожие на "Горки-6"















