| Площадь дома: | 450 кв. м |
| Площадь участка: | 10 соток |
| Материал дома: | Иной |
| Отделка: | Под чистовую отделку |
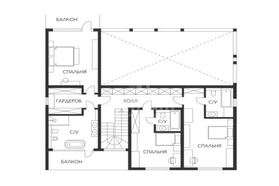
| Этажи/уровни: | 1 этаж: прихожая, большая гардеробная для верхней одежды, холл, кухня - гостиная -столовая с выходом на просторную террасу 85м2, кабинет или гостевая спальня с выходом на террасу, саунзел с сауной, постирочная, кладовая при кухне, бойлерная, кладовая для инвентаря. 2 этаж: хозяйская спальня с гардеробной и санузлом с двумя балконами, 2 детских с санузлами |
| Коммуникации: | Центральные |
В продаже дом 450 кв.м в КП Павлово-2 в 14 км от МКАД по Новорижскому шоссе!
Дом в конечном итоге с чистовой отделкой, на данном этапе white box (это учтено в цене). Планировкой предусмотрено 3 спальни.
На участке 10 соток разбит газон.
Объекты, похожие на "Павлово-2"


















