| Площадь дома: | 384 кв. м |
| Площадь участка: | 14.4 соток |
| Материал дома: | Иной |
| Отделка: | Без отделки |
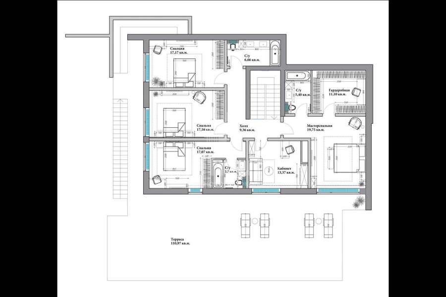
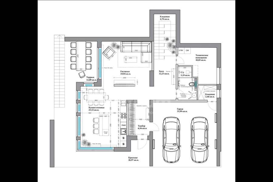
| Этажи/уровни: | 1 этаж: Кухня-гостиная, спальня, с/у, гараж, терраса 2 этаж: спальня с собственными гардеробной и с/у, спальни- 2 шт, кабинет, с/у-2 шт, гардеробная, терраса |
| Коммуникации: | Центральные |
Уникальный коттеджный поселок "Sunny Hills"! Расположенный всего в 40 минутах от Москвы вне зависимости от пробок по живописному Рублево-Успенскому шоссе. Это место, где Ваши мечты о загородной недвижимости воплощены в реальность.
Эти коттеджи предоставляют вам возможность наслаждаться собственным зеленым уголком. Просторные участки идеально подходят для создания садов, площадок для барбекю или спокойных зон для отдыха на свежем воздухе.
Возможны вариации в отделке: Grey box, white box, чистовая отделка.
Объекты, похожие на "Sunny Hills (Назарьево)"




















