| Площадь дома: | 307 кв. м |
| Площадь участка: | 8.3 соток |
| Материал дома: | Кирпич |
| Отделка: | Без отделки |
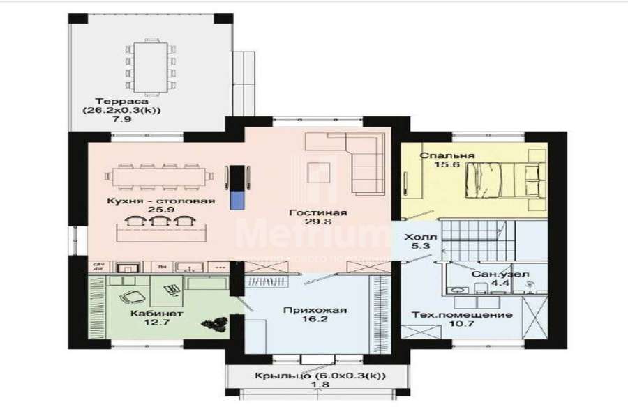
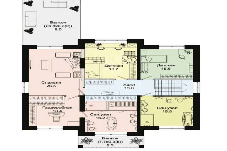
| Этажи/уровни: | На первом этаже, общей площадью 152,8 кв.м, разместилась большая гостиная, совмещенная с кухней-столовой. Из нее можно попасть в кабинет и на крытую террасу. Здесь же находится уютная спальня для гостей. На первом этаже расположено техническое помещение с санузлом. На втором этаже, общей площадью 154.2 кв.м, комфортно организованное пространство дома «Марсель» составляют: большая спальня площадью 26,5 кв.м с собственной гардеробной и ванной комнатой, 2 детских с санузлом. Из мастер-спальни есть выход на просторный балкон, откуда открывается красивый вид на поселок. |
| Коммуникации: | центральные |
Строящийся двухэтажный коттедж 307 кв.м по проекту «Марсель» в КП Миллениум Парк. Это современный дом в стиле Райта, с удобной планировкой, высокими потолками 3,3 м и большими панорамными окнами — внутри всегда много света и тепла. На 2-х этажах есть все необходимое: просторный холл со столовой, кухня, кабинет, гардеробная, хозяйственные помещения, 4 спальни и 3 санузла. Дом строится на участке правильной прямоугольной формы размером 10
соток. По периметру будут высажены кустарники и деревья, а основная часть территории уложена газоном и готова к идеям по благоустройству. Внешняя отделка дома будет выполнена премиальными материалами в серо-молочной
гамме: натуральный песчаник, цементно-песчаная черепица, планкен.
Объекты, похожие на "Миллениум Парк"





