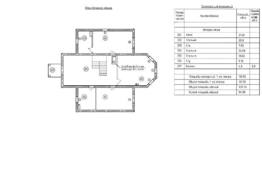
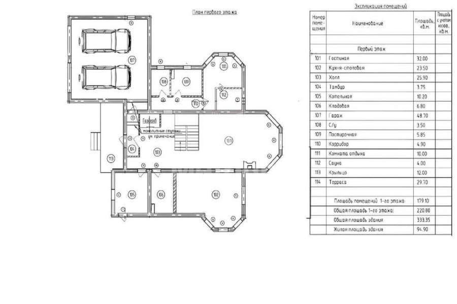
| Площадь дома: | 307 кв. м |
| Площадь участка: | 30 соток |
| Материал дома: | Кирпич |
| Отделка: | Без отделки |
| Этажи/уровни: | 1 этаж: Кухня, столовая , гостиная, кабинет. Санузел. 2 этаж : 3 спальни с санузлами. Гардеробная. Есть мансарда. Около 30 м². |
| Коммуникации: | центральные |
Площадь дома без отделки 307 м². Встроенный гараж на 2 машины. Все коммуникации введены в дом. Газифицирован. Дом расположен на участке в 30 соток (ИЖС) в центральной части поселка . Рядом с озером. Посёлок “Онегино” расположен на 24км от МКАД по Новорижскому шоссе, рядом с элитными коттеджными посёлками Агаларов Эстейт, Шервуд и Миллениум парк.Один из самых богатых по инфраструктуре поселков на Новой риге, с транспортной доступностью, на территории элитного поселка Онегино расположено:
-Английская Школа
- Детский сад
- Детские кружки
- Салоны красоты
- Тренажерный и гимнастический спортзалы
- Теннисные и падел корты, закрытые и открытые
- Ресторан с летней террасой на озере
- Прогулочные зоны (13Га) с озером и пляжем, спортивной и детской площадками. А также богатая инфраструктура в 5 минутах ходьбы от поселка: Ломоносовская школа и Эстейт Молл( магазины, рестораны, медцентр, Даниловский рынок, фитнес, аптека, салон красоты, зоомагазин, автомойка, химчистка).















