| Площадь дома: | 550 кв. м |
| Площадь участка: | 11 соток |
| Материал дома: | Кирпич |
| Отделка: | Под ключ |
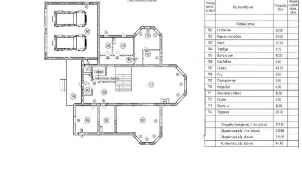
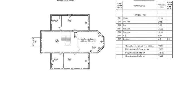
| Этажи/уровни: | Первый этаж: холл, гардеробная, кухня-гостиная, спальня, санузел, каминная зимняя терраса, гараж для 3-х автомобилей. Второй этаж: холл, мастер-спальня с 2-мя гардеробными, санузлом и выходом на открытую террасу с джакузи и 2 шезлонгами, 3 спальни, гардеробная,санузел. Планировка гостевого дома. 1-й этаж: гостиная, кухня, санузел, спальня. Цоколь: СПА-зона с хаммамом и зоной отдыха в турецком стиле. |
| Коммуникации: | Центральные |
Дом в КП "Княжье Озеро" с 5 спальнями, общей площадью 550 м², представлен "под ключ" и расположен на видовом участке 11 соток. Функциональная планировка продумана для удобства большой семьи. Первый этаж: холл, гардеробная, кухня-гостиная, спальня, санузел, каминная зимняя терраса, гараж для 3-х автомобилей. Второй этаж: холл, мастер-спальня с 2-мя гардеробными, санузлом и выходом на открытую террасу с джакузи и 2 шезлонгами, 3 спальни, гардеробная, санузел. Большая площадь остекления и высокие потолки делают внутреннее пространство объемным, светлым и уютным. Установлена сантехника ведущих производителей.Через дом организован проход к гостевому дому. Центральные коммуникации позволяют жить на природе с городским комфортом круглый год: газ, электричество, водоснабжение и канализация. Также подключен высокоскоростной интернет. Система "Умный дом" позволяет регулировать температуру и влажность воздуха в каждой комнате. Для дополнительной безопасности монтированы датчики протечки воды. Установлены камеры внешнего видеонаблюдение для наилучшей безопасности.















