Дом ID 13731, Маслово Forest Club (Николина Гора)
| Площадь дома: | 293.3 кв. м |
| Площадь участка: | 10.54 соток |
| Материал дома: | Кирпич |
| Отделка: | Без отделки |
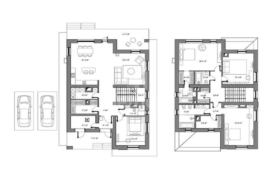
| Этажи/уровни: | 1 этаж: Прихожая 3,19 м² Холл 11,45 м² Гардеробная 7,23 м² Кладовая 6,23 м² Кабинет 15,52 м² Санузел 4,42 м² Котельная 7,28 м² Гостиная 18,98 м² Кухня-столовая 35,12 м² Лестница 8,66 м. 2 этаж: Коридор 7,07 м². Детская 18,03 м². Мастер-спальня 2 22,84 м². Гардеробная (мастер 2) 3,19 м². Санузел (мастер 2) 3,96 м². Гардеробная 3,71 м². Санузел 4,92 м². Мастер-спальня 1 25,50 м². Гардеробная (мастер 1) 6,18 м². Санузел (мастер 1) 9,99 м². |
| Коммуникации: | центральные |
Респектабельный дом линейки Victory вдохновлён «органической архитектурой» Фрэнка Ллойда Райта. Спокойная стилистика коттеджа удачно вписывается в окружение, а облик динамичен за счёт смещения объёмов и разнонаправленности кирпичной кладки. В отделке фасада используются экологичные и долговечные материалы: облицовочный кирпич ручной формовки светлого оттенка, декоративная штукатурка и планкен тёмного цвета
в акцентном оформлении. На первом этаже владельцы могут обустроить просторную кухню-гостиную, кабинет, ванную комнату и хозяйственные помещения: полностью оборудованную котельную, гардеробную и кладовую. Второй этаж предназначен для приватной зоны: у каждой из трёх спален, включая детскую, предусмотрена личная ванная комната и гардеробная.
«Маслово Forest Club» — посёлок премиум-класса в одном из знаковых мест Подмосковья. Современная архитектура и скандинавский подход к организации пространства отражены в простой геометрии домов и комфортных планировках. А натуральные материалы, используемые для фасадов, надолго сохранят эстетические и физические свойства каждого дома. Современные загородные дома среди вековых сосен в одном из знаковых мест Подмосковья. Актуальная архитектура с чистыми линиями и своё уютное пространство, располагающее к общению. Рядом — живописные верховья Москвы-реки и Николина Гора, где есть рестораны высокой кухни, художественные галереи и спортивные центры.





