Дом ID 13490, Усадьба Бергов (Первомайское)
Направление:
Киевское, 24 км. от МКАД
1 099 155 $
89 279 634 ₽
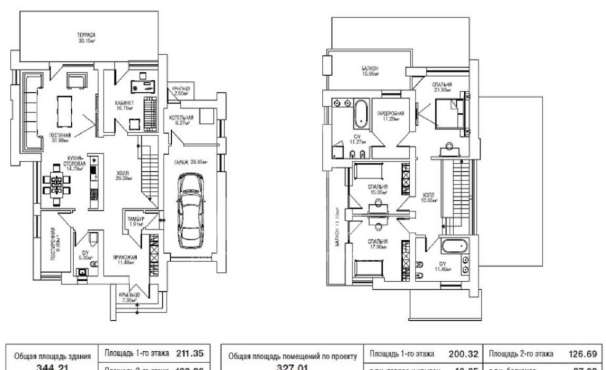
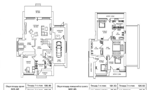
| Площадь дома: | 500 кв. м |
| Площадь участка: | 22.5 соток |
| Материал дома: | Кирпич |
| Отделка: | Без отделки |
| Коммуникации: | центральные |
Дом в тихом охраняемом поселке в 20-ти минутах езды от МКАД. Клубный проект «Усадьба Бергов» расположен всего в 20 км от Москвы по Киевскому/Калужскому шоссе. Территория поселка занимает 17га, зона исторической постройки памятника истории и культуры регионального значения «Усадьба Бергов».
Объекты, похожие на "Усадьба Бергов (Первомайское)"











