| Площадь дома: | 1000 кв. м |
| Площадь участка: | 15 соток |
| Отделка: | Без отделки |
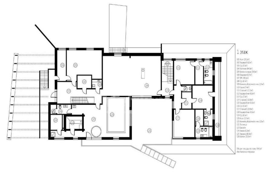
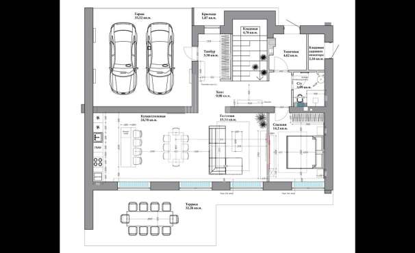
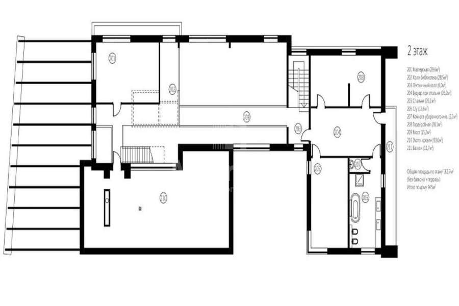
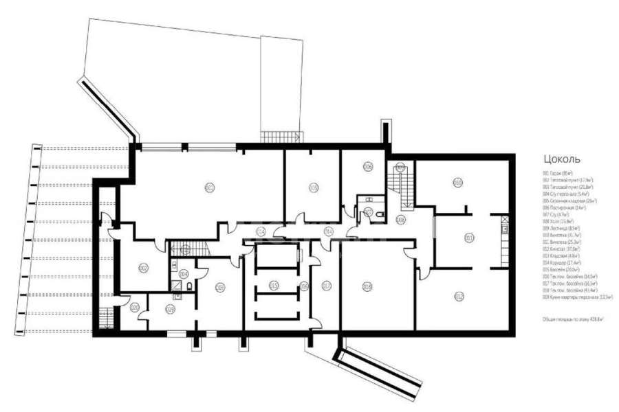
| Этажи/уровни: | Цоколь: холл, кинозал, винотека, санузел, сезонные кладовые, постирочная, гараж на 2 м/м, котельная, оборудование под бассейном, жилой блок для персонала с отдельным входом: прихожая, кухня, комната, санузел. 1 этаж: холл, гардеробная, гостевой санузел, просторная гостиная со вторым светом 84 м², кухнястоловая с кладовой, СПА-зона: комната отдыха, сауна, хамам, душевые, санузел, бассейн (10м), выход на летнюю террасу; спальный блок первого этажа: 3 спальни, каждая с ванной и гардеробной комнатой, выходом на террасу. 2 этаж: холл-библиотека, мастерская/кабинет, выход на эксплуатируемую кровлю, мастер-блок: спальня, будуар, ванная комната, гардеробная, выход на балкон. |
| Коммуникации: | центральные |
Современный дом общей площадью 1000 м², без внутренней отделки. Тихое приватное место в респектабельном соседстве. Отличная транспортная доступность.
Объекты, похожие на "Солослово"



















