| Площадь дома: | 550 кв. м |
| Площадь участка: | 21 соток |
| Материал дома: | Иной |
| Отделка: | Под ключ |
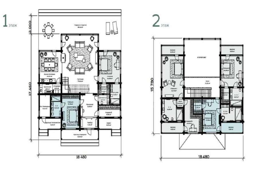
| Этажи/уровни: | • Входная группа с тамбуром. -Просторная прихожая с гардеробом. -Панорамные окна зона гостиной. • Эргономичная зона столовой с островом и обеденным столом. • Двусторонний камин. • 4 больших шумоизолированных друг от друга спал. • Интерьерная лестница. • Отдельная зона технического помещения для хранения, стирки и глажки. • Выход из гостиной зоны на открытую террасу. |
| Коммуникации: | центральные |
В продаже дома от 450 кв.м. до 550 кв.м в комплексе Залесье в 90 км от МКАД по Новорижскому шоссе! Резиденция «Залесье» создана в коллаборации с пятизвездочным отелем Cosmos Collection Izumrudny Les и объединяет инфраструктуру проектов в уникальном месте среди вековых реликтовых лесов Клинского района Московской области в 60 минутах от Москвы.
Залесье- загородный проект, сочетающий в себе клубный дом для жителей резиденции, собственную баню на дровах, экопарковку за территорией резиденции. Поселок находится под охраной 24/7, работает консьерж сервис премиум-класса. В пешей доступности инфраструктура отеля 5* .
Обращайтесь за более подробной информацией!
Объекты, похожие на "Залесье"
