| Площадь дома: | 433 кв. м |
| Площадь участка: | 18 соток |
| Материал дома: | Кирпич |
| Отделка: | Под ключ |
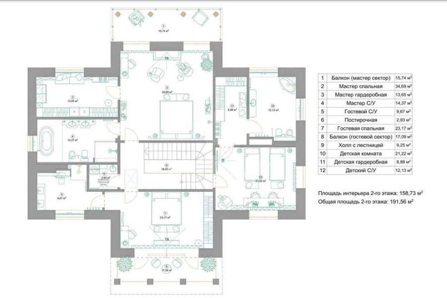
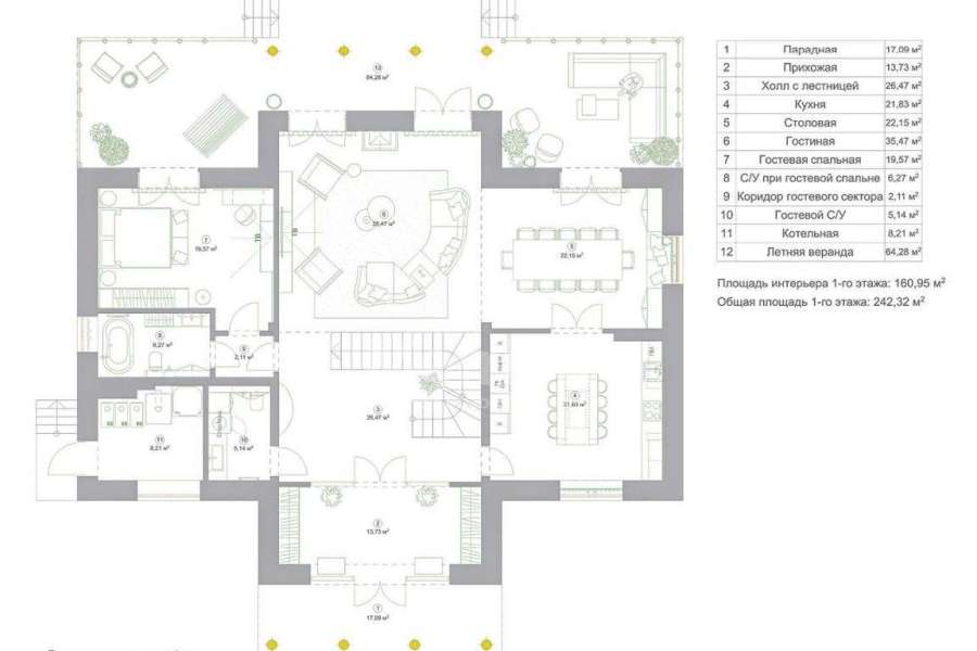
| Этажи/уровни: | 1 этаж: парадная, прихожая, холл с лестницей, кухня, столовая, гостиная, гостевая спальня, с/у, котельная, летняя веранда. 2 этаж: балкон (мастер сектор), мастер спальня, мастер гардеробная, 2 с/у, постирочная, гостевая спальня, балкон , холл с лестницей, детская комната, детская гардеробная, детский санузел. |
| Коммуникации: | центральные |
Коттедж в КП Millennium Park (Миллениум Парк), площадью 433 кв.м на участке 18 соток.
Гараж - 2 уровня с сектором для персонала 150 кв.м, СПА- 2 уровня 330 кв.м. В доме много света, что создает атмосферу уюта, тепла и комфорта.
Объекты, похожие на "Миллениум Парк"















