| Площадь дома: | 590 кв. м |
| Площадь участка: | 18.51 соток |
| Материал дома: | Кирпич |
| Отделка: | Под ключ |
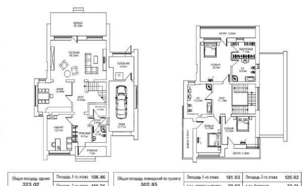
| Этажи/уровни: | 1 этаж: холл и столовая-гостиная со вторым светом, кухня, кабинет, зимний сад, с/у, гардеробная, спальня с с/у, котельная, постирочная, кладовая, гараж. 2 этаж: 3 спальни со своими гардеробными и с/у, библиотека, галерея, сауна, с/у, 2 балкона. |
| Коммуникации: | центральные |
Дом "под ключ" в КП "Райт Вилладж", в 20 мин. от Москвы. Коттедж построен из кирпича, монолитные перекрытия. В отделке фасада в современном стиле - натуральное дерево (лиственница) и штукатурка. Эксплуатируемая кровля.
На участке выполнен ландшафтный дизайн
Объекты, похожие на "Райт Вилладж"


