| Площадь дома: | 2193.5 кв. м |
| Площадь участка: | 56.16 соток |
| Материал дома: | Иной |
| Отделка: | Под чистовую отделку |
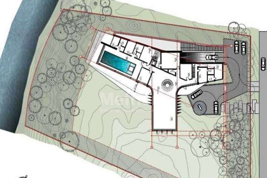
| Этажи/уровни: | Цоколь: гараж 5-6 м/м с комнатой для хранения, 3-х комнатная квартира для пероснала с отдельным входом, сезонная гардеробная, котельная, техпомщенеие под бассейном. 1 этаж: холл, просторная гардеробная, гостиная со вторым светом, зона кухни-столовой, рабочая кухня, кальянная, с/у гостевой, 2 гостевых спальни с с/у, кинозал, СПА-зона: бассейн 15м, массажная, хамам, сауна, душевая, с/у; 2 этаж: холл, мастер-блок: спальня, две просторные гардеробные, ванная комната, спортивный зал, выход на просторную террасу-патио; блок: 4 спальни со своими с/у и гардеробными. |
| Коммуникации: | центральные |
В продаже вилла в КП Агаларов Estate в 24 км от МКАД по Новорижскому шоссе!
Современная вилла 2200 кв.м продается без отделки, что позволяет Вам воплотить в жизнь любое дизайнерское решение. Планировка подразумевает просторную гостиную со вторым светом и потолками 8 метров, что обеспечит большое количество света и воздушность пространства. В доме 2 кухни- хозяйская и рабочая. Идеальным местом для отдыха станет бассейн 15м с видом на озеро возле дома, а также кинотеатр, кальянная и массажная. Грамотное распределение пространства позволит организовать 7 спален с собственными санузлами и гардеробными, а настоящей жемчужиной станет мастер-блок 200 кв.м с роскошными видами.
Еще одной изюминкой дома является его расположение. Дом расположен на участке 56 соток, который примыкает к озеру в самой широкой его части, позволяя любоваться живописной панорамой из окон. На просторном участке Вы можете организовать зону для отдыха, продумать ландшафтный дизайн, и Ваша приватная прогулочная зона готова! Дом сочетает в себе отличное расположение и будущий комфорт жизни!















