Дом ID 12238, Новорижский (Покровское)
Направление:
Новорижское, 23 км. от МКАД
1 852 508 $
149 313 997 ₽
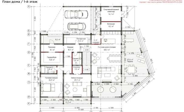
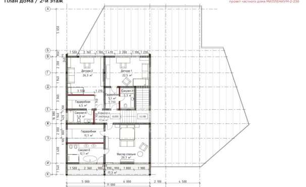
| Площадь дома: | 550 кв. м |
| Площадь участка: | 15 соток |
| Материал дома: | Дерево |
| Отделка: | Под ключ |
| Этажи/уровни: | 1-й этаж: гостиная, кухня - столовая, с/у, спальня - кабинет, терраса, котельная. 2-й этаж: 4 спальни, 2 с/у, гардеробная, 2 лоджии. |
| Коммуникации: | центральные |
Дом из клееного бруса. На участке выполнен ландшафтный дизайн, есть свой пруд, высажены деревья и есть фруктовый сад. Свой выход к водному каналу с прогулочной зоной. Также имеется гостевой дом с банным комплексом.
Объекты, похожие на "Новорижский (Покровское)"



















