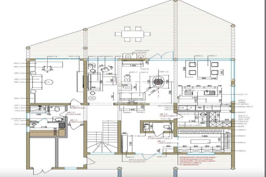
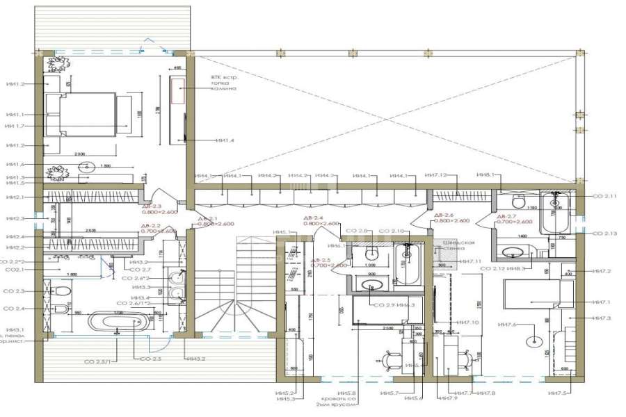
| Площадь дома: | 450 кв. м |
| Площадь участка: | 10 соток |
| Материал дома: | Дерево |
| Отделка: | Под чистовую отделку |
| Этажи/уровни: | 1 уровень: Прихожая, большая гардоробная для верхней одежды, холл, кухня - гостиная - столовая с выходом на просторную террасу 85м2, кабинет или гостевая спальня с выходом на террасу, саунзел с сауной, постирочная, кладовая при кухне, бойлерная, кладовая для инвентаря 2 уровень: Хозяйская спальня с гардеробной и санузлом с двумя балконами, 2 детских с санузлами |
| Коммуникации: | центральные |
Коттеджный поселок Павлово 2 расположен в 14 км. по Новорижскому шоссе от столичной кольцевой дороги. Территория коттеджного поселка Павлово2 составляет около 88 Га. Жилая зона застроена 140 коттеджами. Размеры застроенных участком от 17 до 42 соток, коттеджи выполнены в едином архитектурном ансамбле. В Павлово 2 создан и квартал из таунхаусов и малоэтажных квартирных домов.
Объекты, похожие на "Павлово-2"




















