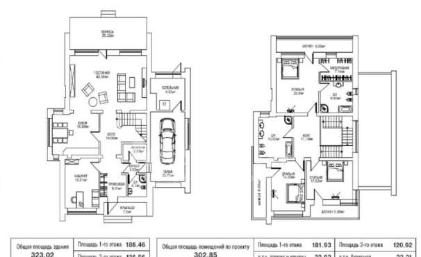
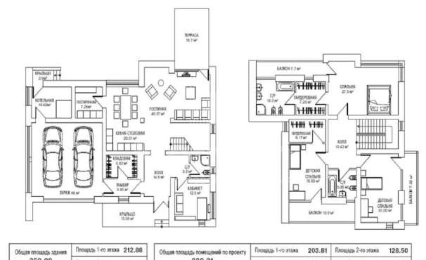
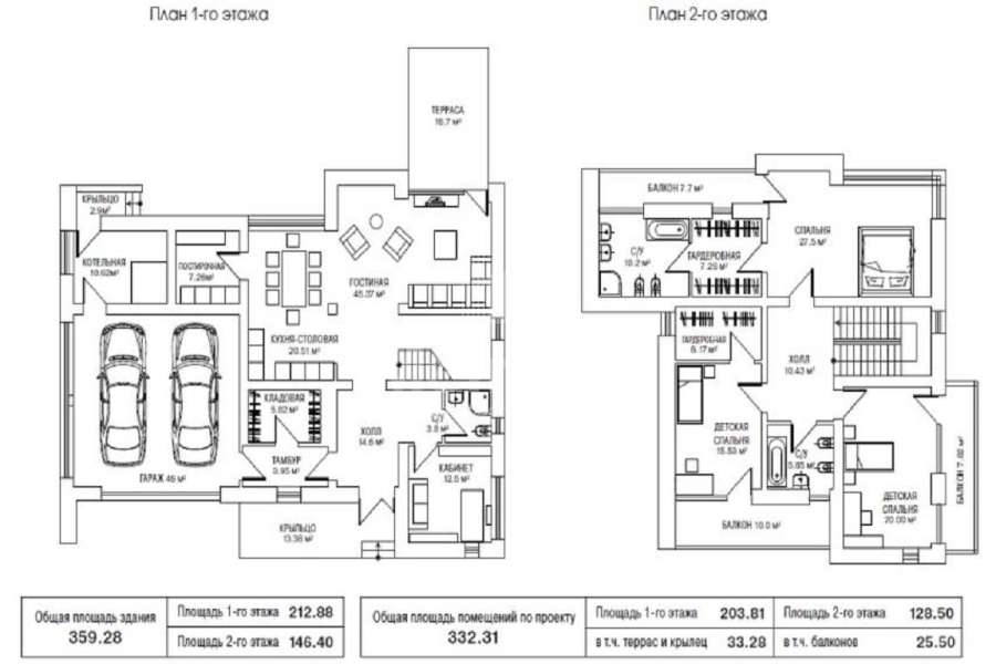
| Площадь дома: | 273.3 кв. м |
| Площадь участка: | 16.02 соток |
| Материал дома: | Иной |
| Отделка: | Без отделки |
| Коммуникации: | центральные |
Крекшино" - загородный коттеджный поселок по Киевскому, Минскому шоссе в 21 км от МКАД. КП "Крекшино" находится рядом с федеральной скоростной автодорогой. На территории поселка освещенные пешеходные бульвары, березовые аллеи, детские и спортивные площадки.
Объекты, похожие на "Крекшино"



