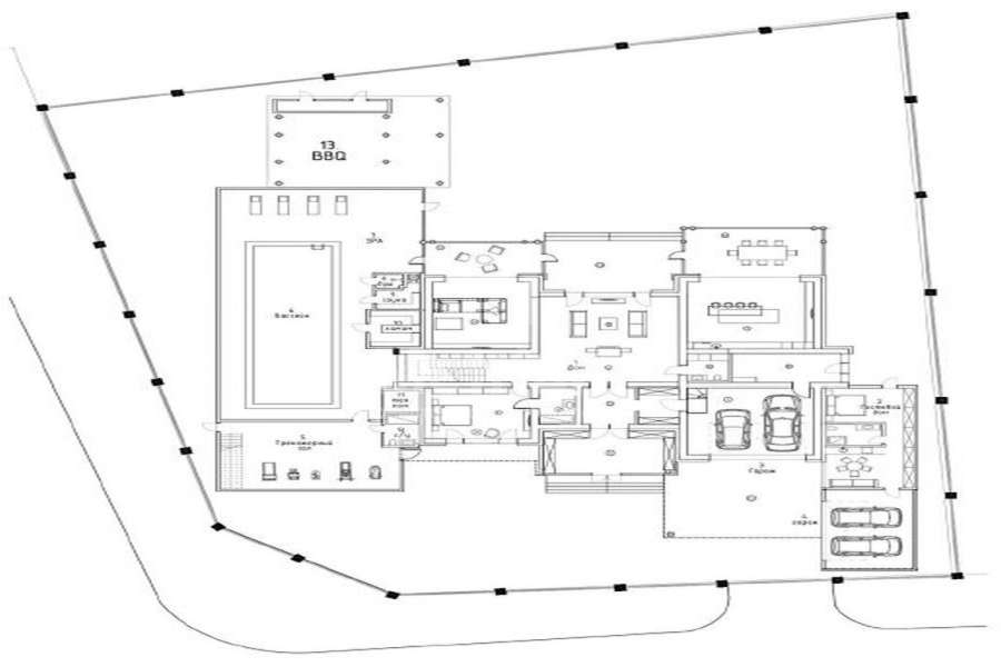
| Площадь дома: | 1100 кв. м |
| Площадь участка: | 21.44 соток |
| Материал дома: | Иной |
| Отделка: | Под ключ с мебелью |
| Коммуникации: | центральные |
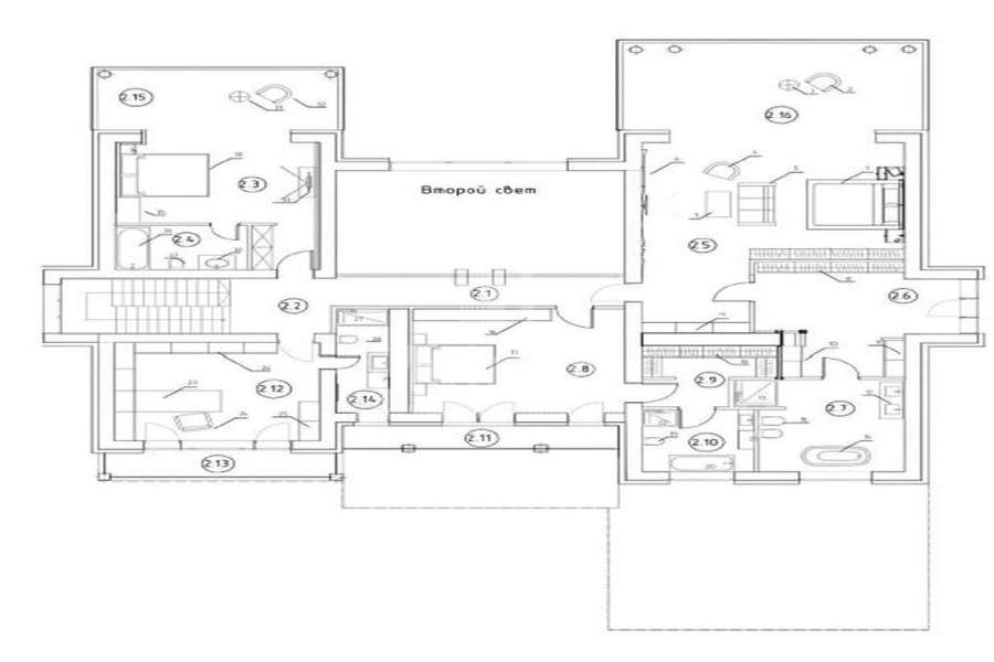
Полностью готовый к проживанию современный дом в поселке Миллениум Парк. Площадь двухэтажного коттеджа 1100 кв.м, дом рассчитан на 5 спален, 7 ванных комнат, просторную гостиную с камином и вторым светом, зону спа с бассейном, сауной и хамамом, блок персонала. Приватный участок, выполнен ландшафтный дизайн.
В Millennium Park работает ресторан, пляж, детский клуб «Робин Гуд». Всего в нескольких минутах езды от поселка находятся общеобразовательные школы, гимназии, центр иностранных языков и детские сады, торговый центр, Даниловский рынок.
Объекты, похожие на "Миллениум Парк"










