квартира
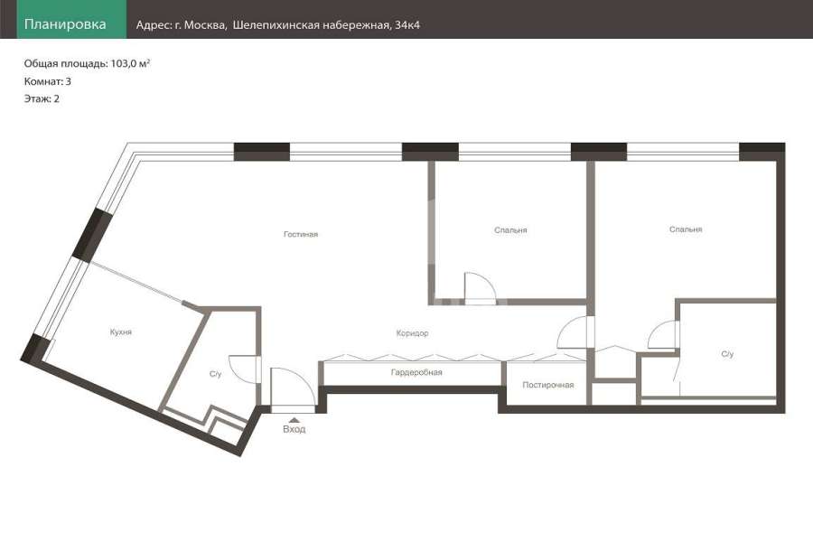
| Площадь квартиры: | 103 кв. м |
| Кол-во комнат: | 3 |
| Кол-во спален: | 2 |
| Кол-во cанузлов: | 2 |
| Стоимость за кв.м: | 11 790 $ |
| Этаж: | 2 |
Предлагается 3-комнатная квартира в ЖК "Сердце Столицы", расположенном на набережной Москва-реки. Интерьер квартиры выполнен с использованием качественных натуральных материалов. Квартира полностью укомплектована мебелью, предметами интерьера, оборудована современной бытовой техникой и готова к проживанию. Функциональная планировка включает в себя кухню, гостиную-столовую, мастер спальню с ванной комнатой, вторую спальню, гостевой санузел. «Сердце Столицы» - современный городской квартал, состоящий из 9 жилых корпусов, школы, детского сада, офисного центра. Комплекс располагается вдоль обустроенной городской набережной с прогулочной зоной. Жилые дома находятся на огороженной, охраняемой территории. Внутренний двор без машин, со своим парком, разделяющим корпуса, детскими и спортивными площадками. Круглосуточная служба консьержей. Подземный паркинг. Удобная транспортная доступность и развитая инфраструктура района сделают проживание в квартире еще более комфортным.
Предлагается 3-комнатная квартира в ЖК "Сердце Столицы", расположенном на набережной Москва-реки. Интерьер квартиры выполнен с использованием качественных натуральных материалов. Квартира полностью укомплектована мебелью, предметами интерьера, оборудована современной бытовой техникой и готова к проживанию. Функциональная планировка включает в себя кухню, гостиную-столовую, мастер спальню с ванной комнатой, вторую спальню, гостевой санузел. «Сердце Столицы» - современный городской квартал, состоящий из 9 жилых корпусов, школы, детского сада, офисного центра. Комплекс располагается вдоль обустроенной городской набережной с прогулочной зоной. Жилые дома находятся на огороженной, охраняемой территории. Внутренний двор без машин, со своим парком, разделяющим корпуса, детскими и спортивными площадками. Круглосуточная служба консьержей. Подземный паркинг. Удобная транспортная доступность и развитая инфраструктура района сделают проживание в квартире еще более комфортным.














