квартира-пентхаус
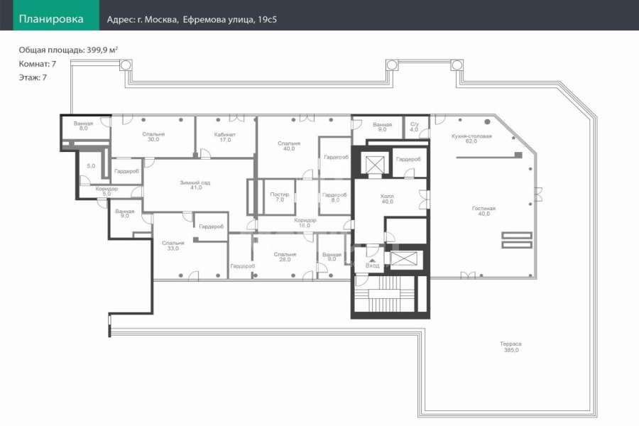
| Площадь квартиры: | 399.9 кв. м |
| Кол-во комнат: | 7 |
| Кол-во спален: | 4 |
| Кол-во cанузлов: | 5 |
| Стоимость за кв.м: | 49 167 $ |
| Этаж: | 7 |
Предлагается пентхаус с террасой в жилом комплексе «Knightsbridge Private Park». Пентхаус имеет свободную планировку, потолки 4,2 метра, что позволяет создать жилое пространство на любой вкус. Сделан вывод под дровяной камин. Возможно спланировать кухню-столовую-гостиную, 4 мастер спальни с ванными и гардеробными комнатами, кабинет, зимний сад, постирочную, гардеробные комнаты, гостевой санузел, террасу 300 кв. м. В стоимость входят 3 машиноместа в подземном паркинге и 2 кладовых помещения. ЖК «Knightsbridge Private Park» - комплекс класса De Luxe расположен в престижном районе столицы. В комплексе предусмотрены 2-уровневый подземный паркинг, круглосуточная охрана, закрытый благоустроенный внутренний двор с ландшафтным дизайном.
Предлагается пентхаус с террасой в жилом комплексе «Knightsbridge Private Park». Пентхаус имеет свободную планировку, потолки 4,2 метра, что позволяет создать жилое пространство на любой вкус. Сделан вывод под дровяной камин. Возможно спланировать кухню-столовую-гостиную, 4 мастер спальни с ванными и гардеробными комнатами, кабинет, зимний сад, постирочную, гардеробные комнаты, гостевой санузел, террасу 300 кв. м. В стоимость входят 3 машиноместа в подземном паркинге и 2 кладовых помещения. ЖК «Knightsbridge Private Park» - комплекс класса De Luxe расположен в престижном районе столицы. В комплексе предусмотрены 2-уровневый подземный паркинг, круглосуточная охрана, закрытый благоустроенный внутренний двор с ландшафтным дизайном.
















