квартира-пентхаус
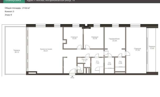
| Площадь квартиры: | 236.5 кв. м |
| Кол-во комнат: | 6 |
| Кол-во спален: | 5 |
| Стоимость за кв.м: | 21 421 $ |
| Этаж: | 9 |
Роскошный и светлый пентхаус площадью 236 кв. м с высокими (3,7 метра) потолками. Из панорамных окон кухни-гостиной открываются виды на Средний Тишинский переулок. Окна спален обращены в сторону Кленового двора. Есть возможность установить дровяной камин и обустроить приватную террасу, чтобы наслаждаться атмосферой загородного дома в центре столицы. Продуманная планировка позволяет разместить кабинет и четыре спальные комнаты с отдельными санузлами и гардеробными.
Роскошный и светлый пентхаус площадью 236 кв. м с высокими (3,7 метра) потолками. Из панорамных окон кухни-гостиной открываются виды на Средний Тишинский переулок. Окна спален обращены в сторону Кленового двора. Есть возможность установить дровяной камин и обустроить приватную террасу, чтобы наслаждаться атмосферой загородного дома в центре столицы. Продуманная планировка позволяет разместить кабинет и четыре спальные комнаты с отдельными санузлами и гардеробными.















