таунхаус
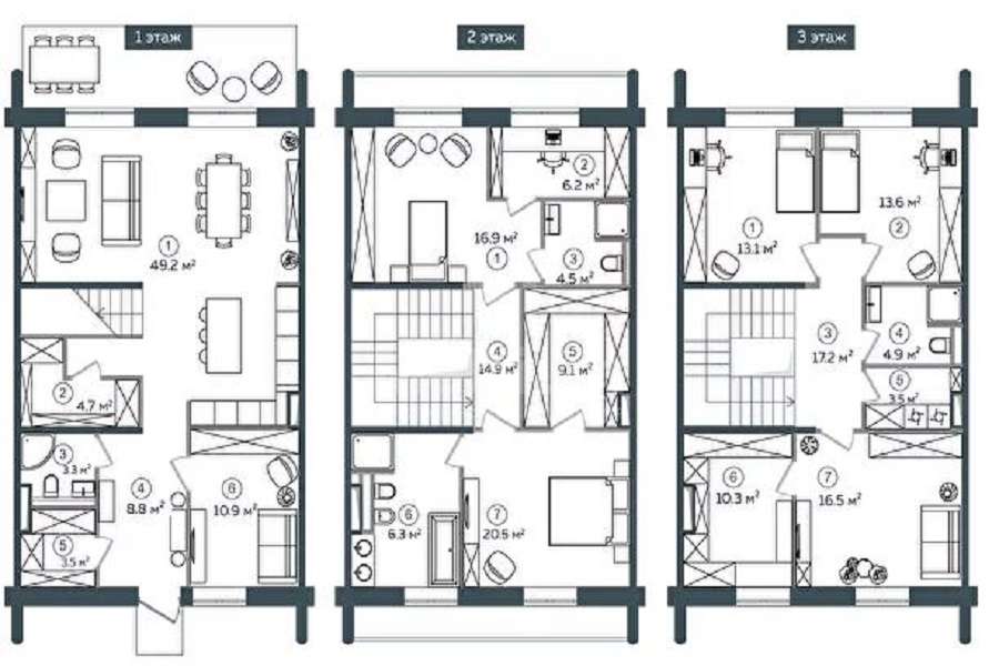
| Площадь квартиры: | 237.9 кв. м |
| Кол-во комнат: | 4 |
| Кол-во спален: | 3 |
| Стоимость за кв.м: | 10 698 $ |
| Этаж: | 1 |
River Residences- это клубные резиденции с апартаментами, таунхаусами и виллами в Серебряном бору. Дома River Residences расположены на острове, относящемуся к заповедной территории. В состав River Residences входит несколько малоэтажных корпусов, которые выполнены в едином стиле с отделкой из натурального камня. Дизайн-проект разработало архитектурное бюро SPEECH. Для будущих жители представлены резиденции 3 типов: с выходом в сад, к реке или с участком на берегу. Также есть отдельные семейные таунхаусы с террасами. Территория жилого комплекса круглосуточно охраняется, есть наземный паркинг.
River Residences- это клубные резиденции с апартаментами, таунхаусами и виллами в Серебряном бору. Дома River Residences расположены на острове, относящемуся к заповедной территории. В состав River Residences входит несколько малоэтажных корпусов, которые выполнены в едином стиле с отделкой из натурального камня. Дизайн-проект разработало архитектурное бюро SPEECH. Для будущих жители представлены резиденции 3 типов: с выходом в сад, к реке или с участком на берегу. Также есть отдельные семейные таунхаусы с террасами. Территория жилого комплекса круглосуточно охраняется, есть наземный паркинг.
