квартира-пентхаус
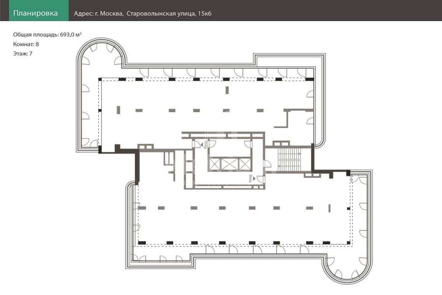
| Площадь квартиры: | 693 кв. м |
| Кол-во комнат: | 8 |
| Кол-во спален: | 7 |
| Кол-во cанузлов: | 5 |
| Стоимость за кв.м: | 5 534 $ |
| Этаж: | 7 |
Предлагается пентхаус в жилом комплексе «Ближняя дача» в малоквартирном корпусе. Свободная планировка. Терраса. Дымоход для камина. Высокие потолки. Возможно спланировать до 7-ми спален. Панорамный вид на 4 стороны. Много окон. В наличии 6 машиномест в подземном паркинге и кладовое помещение. ЖК «Ближняя дача» – это элитный жилой квартал, который расположен на западе Москвы в непосредственной близости от Волынского леса. Жилой комплекс имеет подземный паркинг, огражденную охраняемую территорию, на которой кроме липовой аллеи разместились роликовые и велосипедные дорожки, детские площадки, цветники, прогулочные дорожки, скульптуры и многое другое.
Предлагается пентхаус в жилом комплексе «Ближняя дача» в малоквартирном корпусе. Свободная планировка. Терраса. Дымоход для камина. Высокие потолки. Возможно спланировать до 7-ми спален. Панорамный вид на 4 стороны. Много окон. В наличии 6 машиномест в подземном паркинге и кладовое помещение. ЖК «Ближняя дача» – это элитный жилой квартал, который расположен на западе Москвы в непосредственной близости от Волынского леса. Жилой комплекс имеет подземный паркинг, огражденную охраняемую территорию, на которой кроме липовой аллеи разместились роликовые и велосипедные дорожки, детские площадки, цветники, прогулочные дорожки, скульптуры и многое другое.










