квартира
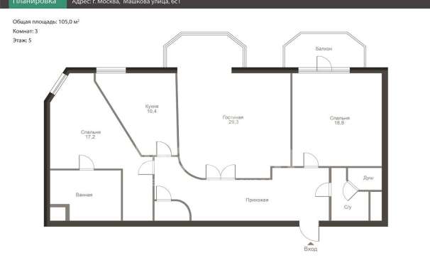
| Площадь квартиры: | 123 кв. м |
| Кол-во комнат: | 3 |
| Кол-во спален: | 2 |
| Этаж: | 6 |
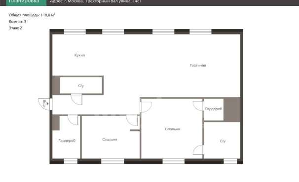
Проект ЖК «Тессинский, 1» предусматривает три формата жилья: стандартные квартиры свободной планировки: пентхаусы с возможностью оборудовать дровяные камины и террасами-патио на эксплуатируемой кровле; двухуровневые квартиры в отдельном особняке. По задумке авторов, гостиные должны быть расположены на южной стороне и из их окон открываются панорамы яузских набережных и исторических достопримечательностей. В спальнях же окна ориентированы на север и смотрят во двор, обеспечивая жильцам тишину и спокойствие. Однако окончательные варианты планировок будут определяться жильцами – им предоставлена полная свобода в выборе расположения комнат, санузлов, гардеробных. Высота потолков в большинстве помещений – от 3,2 до 3,8 м, в комнатах со вторым светом – до 7,1 м. Окна – панорамные, до 2,7 м в высоту.
Проект ЖК «Тессинский, 1» предусматривает три формата жилья: стандартные квартиры свободной планировки: пентхаусы с возможностью оборудовать дровяные камины и террасами-патио на эксплуатируемой кровле; двухуровневые квартиры в отдельном особняке. По задумке авторов, гостиные должны быть расположены на южной стороне и из их окон открываются панорамы яузских набережных и исторических достопримечательностей. В спальнях же окна ориентированы на север и смотрят во двор, обеспечивая жильцам тишину и спокойствие. Однако окончательные варианты планировок будут определяться жильцами – им предоставлена полная свобода в выборе расположения комнат, санузлов, гардеробных. Высота потолков в большинстве помещений – от 3,2 до 3,8 м, в комнатах со вторым светом – до 7,1 м. Окна – панорамные, до 2,7 м в высоту.




















