квартира
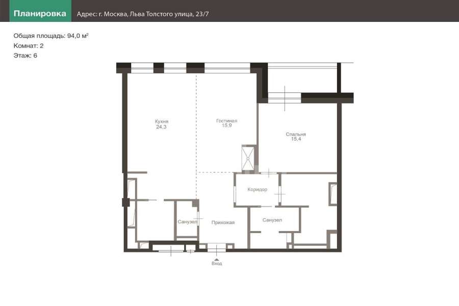
| Площадь квартиры: | 94 кв. м |
| Кол-во комнат: | 2 |
| Кол-во спален: | 1 |
| Кол-во cанузлов: | 2 |
| Стоимость за кв.м: | 31 311 $ |
| Этаж: | 6 |
Предлагается 2-комнатная квартира в ЖК «Литератор». В интерьере квартиры доминирует спокойная американская классика от Ralph Lauren с добавками современного стиля. Квартира полностью укомплектована мебелью, оборудована современной бытовой техникой от ведущих мировых производителей и готова к проживанию. Функциональная планировка включает в себя кухню, гостиную с дровяным камином, зону столовой, спальню с гардеробной и ванной комнатой, постирочную, гостевой санузел. 2 машиноместа в подземном паркинге входят в стоимость. ЖК «Литератор» - это малоэтажный элитный жилой комплекс с небольшими уютными дворами, что создает ощущение приватности и гармонии. Комплекс находится под круглосуточной охраной, сигнализацией, системой видеонаблюдения. На территории комплекса есть подземный паркинг. Удобная транспортная доступность и развитая инфраструктура района сделают проживание в квартире еще более комфортным.
Предлагается 2-комнатная квартира в ЖК «Литератор». В интерьере квартиры доминирует спокойная американская классика от Ralph Lauren с добавками современного стиля. Квартира полностью укомплектована мебелью, оборудована современной бытовой техникой от ведущих мировых производителей и готова к проживанию. Функциональная планировка включает в себя кухню, гостиную с дровяным камином, зону столовой, спальню с гардеробной и ванной комнатой, постирочную, гостевой санузел. 2 машиноместа в подземном паркинге входят в стоимость. ЖК «Литератор» - это малоэтажный элитный жилой комплекс с небольшими уютными дворами, что создает ощущение приватности и гармонии. Комплекс находится под круглосуточной охраной, сигнализацией, системой видеонаблюдения. На территории комплекса есть подземный паркинг. Удобная транспортная доступность и развитая инфраструктура района сделают проживание в квартире еще более комфортным.








