квартира
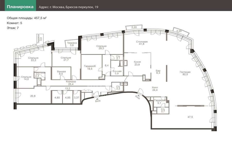
| Площадь квартиры: | 457.5 кв. м |
| Кол-во комнат: | 5 |
| Кол-во спален: | 4 |
| Кол-во cанузлов: | 4 |
| Стоимость за кв.м: | 19 672 $ |
| Этаж: | 7 |
Предлагается квартира в клубном доме Брюсов, 19. Пятикомнатная квартира с отделкой по проекту дизайнера Antonino Cascio. Большая и просторная зона гостиной площадью 95 кв.м, кабинет с бильярдом. Изолированная кухня со встроенной техникой Gaggenau и выходом в столовую зону. Хозяйская спальня с большой гардеробной, отдельной ванной комнатой и туалетом. Две детские спальни и гостевая комната. В квартире отдельно обустроена зона для персонала, которая включает в себя большую рабочую кухню и постирочную, две комнаты отдыха и отдельный санузел, а также подсобную и серверную комнаты. Для комфортабельного проживания в квартире имеется второй вход.
Предлагается квартира в клубном доме Брюсов, 19. Пятикомнатная квартира с отделкой по проекту дизайнера Antonino Cascio. Большая и просторная зона гостиной площадью 95 кв.м, кабинет с бильярдом. Изолированная кухня со встроенной техникой Gaggenau и выходом в столовую зону. Хозяйская спальня с большой гардеробной, отдельной ванной комнатой и туалетом. Две детские спальни и гостевая комната. В квартире отдельно обустроена зона для персонала, которая включает в себя большую рабочую кухню и постирочную, две комнаты отдыха и отдельный санузел, а также подсобную и серверную комнаты. Для комфортабельного проживания в квартире имеется второй вход.












