апартаменты
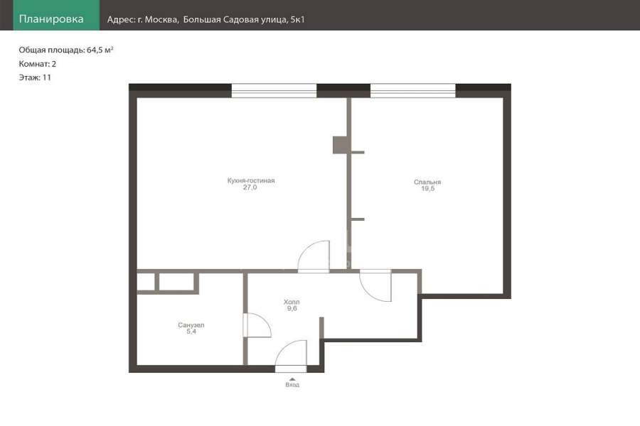
| Площадь квартиры: | 64.5 кв. м |
| Кол-во комнат: | 2 |
| Кол-во спален: | 1 |
| Кол-во cанузлов: | 1 |
| Стоимость за кв.м: | 11 050 $ |
| Этаж: | 11 |
Предлагаются апартаменты в элитном комплексе «Сады Пекина». Выполнена отделка White box. Разведена электрика, смонтированы вентиляция и кондиционирование, на полу стяжка. Все материалы для отделки и мебель куплены и входят в стоимость апартаментов. Планировка: кухня-гостиная, спальня, ванная комната. Вид из окон на внутренний благоустроенный двор с ландшафтным дизайном. В наличии машиноместо в подземном паркинге. В комплексе круглосуточный консьерж-сервис и охрана территории, система видеонаблюдения и контроля доступа. Удобная транспортная доступность и развитая инфраструктура района.
Предлагаются апартаменты в элитном комплексе «Сады Пекина». Выполнена отделка White box. Разведена электрика, смонтированы вентиляция и кондиционирование, на полу стяжка. Все материалы для отделки и мебель куплены и входят в стоимость апартаментов. Планировка: кухня-гостиная, спальня, ванная комната. Вид из окон на внутренний благоустроенный двор с ландшафтным дизайном. В наличии машиноместо в подземном паркинге. В комплексе круглосуточный консьерж-сервис и охрана территории, система видеонаблюдения и контроля доступа. Удобная транспортная доступность и развитая инфраструктура района.








